• duke@compass-gy.com

CONDOS 01

inner_b1
  • INTERIOR AREA FROM: 1295.33 SQ FT
  • BALCONY AREA FROM: 91.92 SQ FT
  • TOTAL AREA FROM: 1387.25 SQ FT
  • BED-ROOM: 2

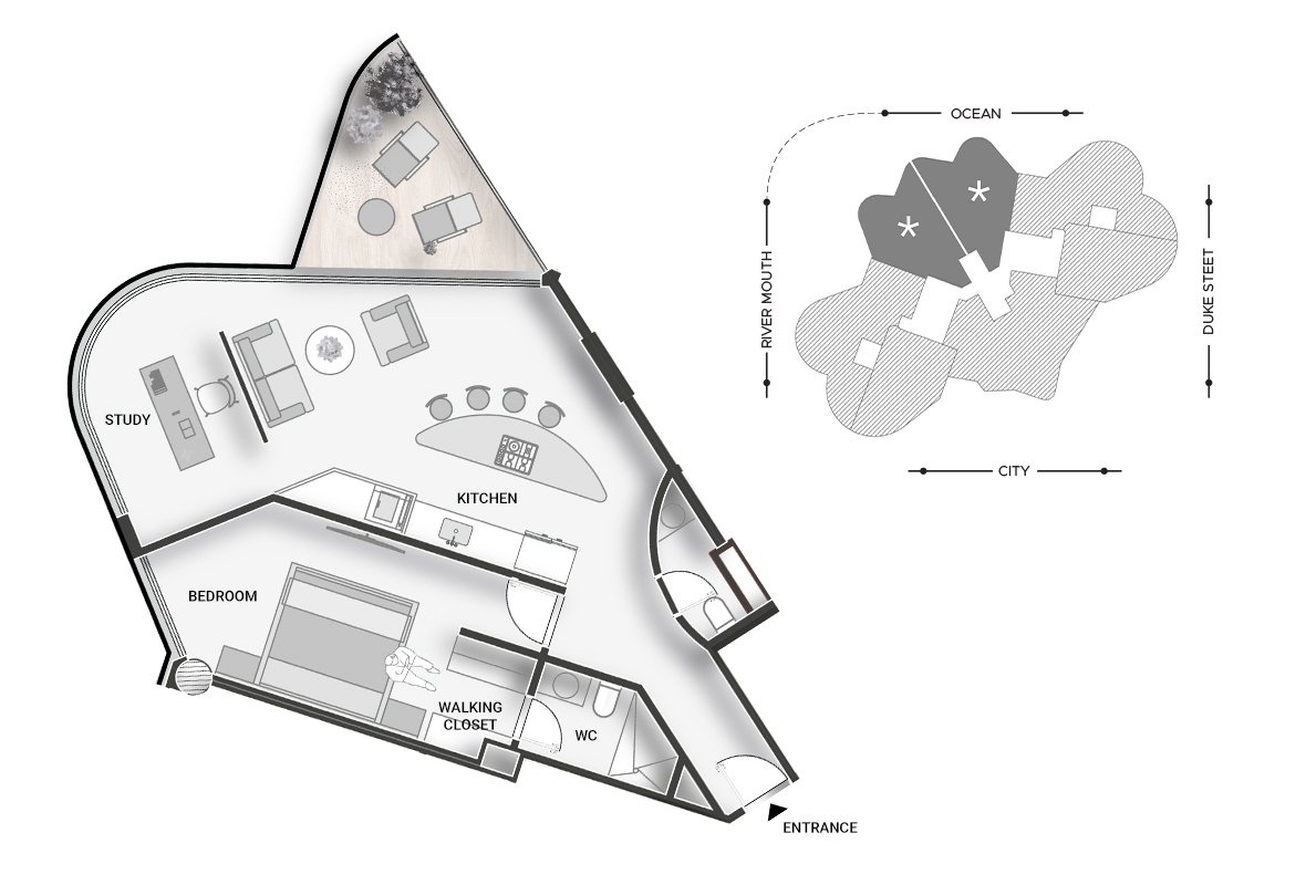
CONDOS 02 - 07

inner_b1
  • INTERIOR AREA FROM: 722.47 SQ FT
  • BALCONY AREA FROM: 71.58 SQ FT
  • TOTAL AREA FROM: 794.05 SQ FT
  • BED-ROOM: 1

CONDOS 03 - 06

inner_b1
  • INTERIOR AREA FROM: 994.48 SQ FT
  • BALCONY AREA FROM: 137.99 SQ FT
  • TOTAL AREA FROM: 1132.47 SQ FT
  • BED-ROOM: 2

CONDOS 04 - 05

inner_b1
  • INTERIOR AREA FROM: 797.50 SQ FT
  • BALCONY AREA FROM: 88.801 SQ FT
  • TOTAL AREA FROM: 886.301 SQ FT
  • BED-ROOM: 1